Científicas españolas: las calles del nuevo barrio Cerca Tejera ya tienen nombres
21-julio-2021. La Junta de Gobierno aprobó en su sesión celebrada ayer la denominación de las calles del desarrollo urbanístico Cerca Tejera, al norte del municipio, que toman como nombres el de mujeres científicas españolas: Evangelina Nogales de la Morena, Margarita del Val, Margarita Salas, María Blasco, Josefina Castellví y Rosa Menéndez. Por otro lado, el barrio de “La Estación” cambia la calle Doctora Nogales de la Morena por Doctor Javier de la Serna, para rendir tributo a este médico conocido y apreciado por generaciones de colmenareños.
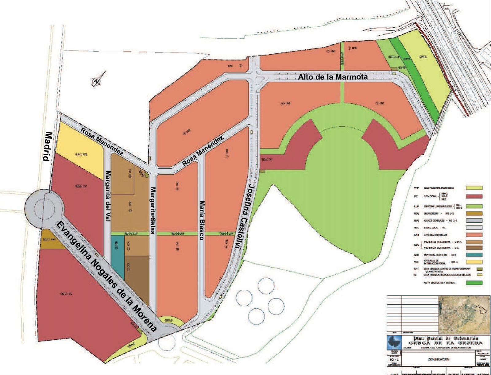
La vía principal de este nuevo barrio toma el nombre de la colmenareña Evangelina Nogales de la Morena, catedrática de Bioquímica, Biofísica y Biología Estructural en el departamento de Biología Molecular y Celular de la Universidad de California en Berkeley, investigadora del Instituto Médico Howard Hughes, e investigadora senior del Lawrence Berkeley National Laboratory de California. Además, dirige su propio laboratorio en la Universidad de California. Nogales es líder internacional en su ámbito con el uso de criomicroscopía electrónica para ver los componentes de las células a nivel atómico, y en la actualidad contribuye en la lucha contra el SARS-CoV-2, tratando de obtener la estructura de los componentes críticos de la COVID-19 para que la industria farmacéutica pueda atacarlo directamente.
Las calles perpendiculares a Evangelina Nogales de la Morena tienen los nombres de: Margarita del Val, viróloga e investigadora del CSIC en el Centro de Biología Molecular Severo Ochoa, y Coordinadora de la Plataforma Salud Global del CSIC de investigación sobre el coronavirus; Margarita Salas, científica bioquímica e investigadora, pionera y referente en España, inició el desarrollo de la biología molecular en este país; María Blasco, bióloga molecular, directora del Centro Nacional de Investigaciones Oncológicas; y Josefina Castellví, oceanógrafa, la primera mujer en dirigir una base científica en la Antártida; Y el cierre norte del sector toma el nombre de Rosa Menéndez, química experta en materiales de carbono para aplicaciones en energía y medio ambiente, primera mujer que preside el CSIC desde su creación en 1939.
![]() |
![]() |
|
![]() |
![]() |
![]() |
La zona del sector que transcurre por la carretera de Miraflores, entre las actuales instalaciones de Cruz Roja y las de Grupo Envera, va a continuar denominándose calle Madrid; así como la continuación de la calle Alto de la Marmota que también mantendrá dicha denominación.
En el barrio de La Estación, justo al lado de la estación de Cercanías, la calle que se denominaba Doctora Nogales de la Morena pasa a denominarse Doctor Javier de la Serna, colmenareño de adopción a quien se rendirá merecido homenaje en los próximos meses con la colocación de la placa en su calle. Desempeñó su carrera en el hospital Ramón y Cajal, así como fue médico de la enfermería de la Plaza de Toros “La Corredera”, siendo quien firmó el parte facultativo de la muerte de “El Yiyo”, además de formar la familia de médicos más conocida del municipio junto a su mujer Doña Emilia.
“En esta pandemia hemos aprendido mucho y tomado conciencia de la importancia de muchas cosas pero, sin duda, del papel que la ciencia desempeña para poder seguir desarrollándonos e incluso sobreviviendo. Por eso, las primeras calles a las que tenemos oportunidad de dar nombre son para la ciencia y en concreto para mujeres relevantes en ámbitos tan diferentes como la lucha contra el cáncer, la virología, la biología molecular, la oceanografía… y como no puede ser de otra manera, la colmenareña Evangelina Nogales de la Morena capitanea estas denominaciones de calles dando nombre a la vía principal”, ha explicado el regidor, Jorge García Díaz.
Quien ha añadido que: “a su vez, rendimos justo homenaje al Doctor Javier de la Serna que va a dar nombre a la primera calle que te cruzas en Colmenar al llegar en tren, que va a estar junto a las de doctores del municipio y que sale de avenida de los Toreros, un sector al que estuvo vinculado toda su vida”.





